How to Beat the Heat
Excessive Heat Buildup at an Automotive Production Plant
Air conditioning (AC) ventilation systems are often not practical at a production facility. Heavy equipment, such as that found in an automotive production plant can result in temperatures exceeding 120+ degrees Fahrenheit; far too high for the safety and performance of employees.
Employees at an automotive parts production plant were experiencing heat exhaustion and in several circumstances passing out on the job! The company was also struggling with their existing HVAC bills as they were higher than normal due to the addition of new equipment. The plant needed a fast and cost effective solution to cool their facility.
The sales engineers at Access have a variety of options available for this type of commerical application. They understand that air handling units (AHU) and AC ventilation systems are just two options available in summer manufacturing, high heat situations. One option is an HVLS, high velocity low speed fan just as that produced by SkyBlade fan.
SkyBlade Fan Company received an inquiry to assist a company who specializes in the manufacturing of automotive parts. They wanted to distribute the process generated heat in the winter months to portions of the building in which the machines were not producing as much heat. Operating stamping machines ten or more hours a day during summer months was causing an excessive heat buildup within the plant, lowering employee comfort as well as slowing overall production. According to a NASA study, “Compendium of Human Responses to the Aerospace Environment”, worker productivity falls significantly for every degree over the optimum temperature of about 72ºF. More specifically, when temperatures rise over 85º, worker output drops by 18 percent and accuracy suffers from a 40 percent increase in errors.
Solution
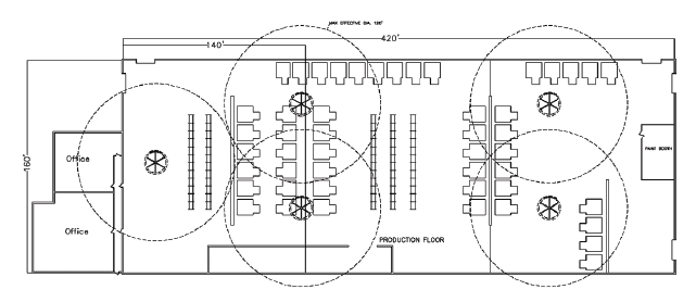
After careful examination and calculations, SkyBlade was able to construct a cost conscious design to combat the buildings internal heat gain problem. By placing five STOL Series 16 Ft. diameter HVLS fans throughout the production area, SkyBlade was able to target and correct key sections of the building that produced the greatest amount of heat. Increasing both the volume and velocity of air movement throughout the plant helped to lower the workers perceived temperature through evaporative cooling, thus sustaining a comfortable and safer work environment. “Our workers are less exhausted and more productive on the job since purchasing our SkyBlade fans, they really move the air around well and cool this place down”, the plant manager told SkyBlade Fan Company. Receiving the stamp of approval from a customers means a lot!


Results
Upon following up with the customer after installation of the HVLS fans; they are reporting significant benefits! More specifically, an increase in worker output production by 12% and increased employee moral which lead to a decrease in the company’s error percentage. The company also reported an annual energy savings of almost $24,000.00 on existing HVAC use.
Do you have a similar problem in your facility? Both of our offices, Access in Wisconsin and the UP of Michigan and Access NE Michigan have experience working with these high heat applications. Contact one of our Sales Engineerstoday to discuss options available for your high heat scenarios.
Adapted from the original. See the complete posting Here